TOKYO GARDEN TERRACE 紀尾井カンファレンス TOKYO GARDEN TERRACE 紀尾井カンファレンス

東京都千代⽥区紀尾井町1番4号
永⽥町駅直結‧⾚坂⾒附駅より徒歩1分
東京駅からすぐ

ご利用事例

  1. TOP
  2. ご利用事例
  3. ミクロネシア連邦 キャプティブ保険セミナー/法人活用セミナー


ミクロネシア連邦 キャプティブ保険セミナー/法人活用セミナー

  • セミナー/講演会
ミクロネシア連邦 キャプティブ保険セミナー/法人活用セミナー
催事名 ミクロネシア連邦 キャプティブ保険セミナー/法人活用セミナー
主催者 MRA Advisors Inc. / Tax Labo Inc.
会場 メインルーム ABCD 会場の詳細についてはこちら
会場 セミナールーム D 会場の詳細についてはこちら
ご利用人数 約200名

催事の概要

講演会(メインルームABCD)
講演会(メインルームABCD)
メインルームABCD(講演会)
メインルームABCD(講演会)
メインルームABCD(講演会)
メインルームABCD(講演会)
キャプティブ保険セミナー会場(メインルーム側ホワイエ)
キャプティブ保険セミナー会場(メインルーム側ホワイエ)
法人活用セミナー会場(セミナールームDホワイエ)
法人活用セミナー会場(セミナールームDホワイエ)
法人活用セミナー会場(セミナールームD)
法人活用セミナー会場(セミナールームD)

紀尾井カンファレンスにて、MRA Advisors Inc. / TaxLabo Inc.様主催の「ミクロネシア連邦 法人活用セミナープログラム」および「ミクロネシア連邦 キャプティブ保険セミナープログラム」が同日・連続で開催されました。
ミクロネシア連邦は、国際的なビジネスプラットフォームとして、特にキャプティブの分野で高い関心を集めています。本セミナーは、専門性の高いテーマに関心を持つビジネスパーソン、約200名規模の参加者を迎えられました。

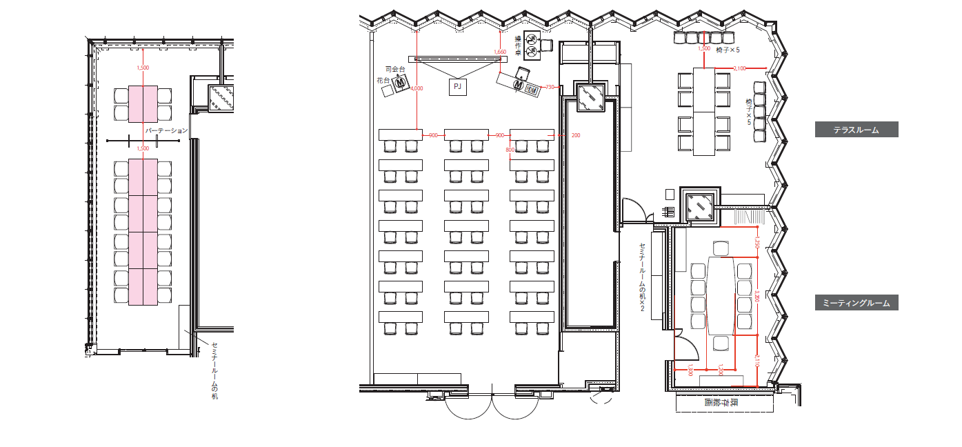
会場レイアウト

会場レイアウト1
会場レイアウト2
会場レイアウト3
会場レイアウト4
会場レイアウト5

この度のセミナーは、主催であるMRA Advisors Inc. / TaxLabo Inc.様を通じて、ミクロネシア連邦政府と連携する各分野のプロフェッショナルによる最新情報が共有されました。
また、テーマが異なる2つのプログラムを同日連続で開催するにあたり、以下の通り会場やホワイエスペースを用途別に使い分け、スムーズな運営を実現いただきました。
・講演会場となるメインルームABCDに隣接するセミナールームDのホワイエに受付スペースを設置し、参加者の入れ替わりや受付の混雑を避けたスムーズな導線を確保いただきました。
・同フロアにあるサクラルーム、テラスルーム、ミーティングルームを、複数の講演者様の控室などにご利用いただきました。
紀尾井カンファレンスのワンフロア完結型の会場設計は、メイン会場・受付・控室のすべてを同一フロアで完結させることで、複数のプログラムをスムーズにつなぐ難易度の高いオペレーションにおいて、その高い効率性と利便性を実感していただけます。